KOSTEK DESIGN
Interior Design
Art Elective Projects
About
Contact
KOSTEK DESIGN
Interior Design
Art Elective Projects
About
Contact
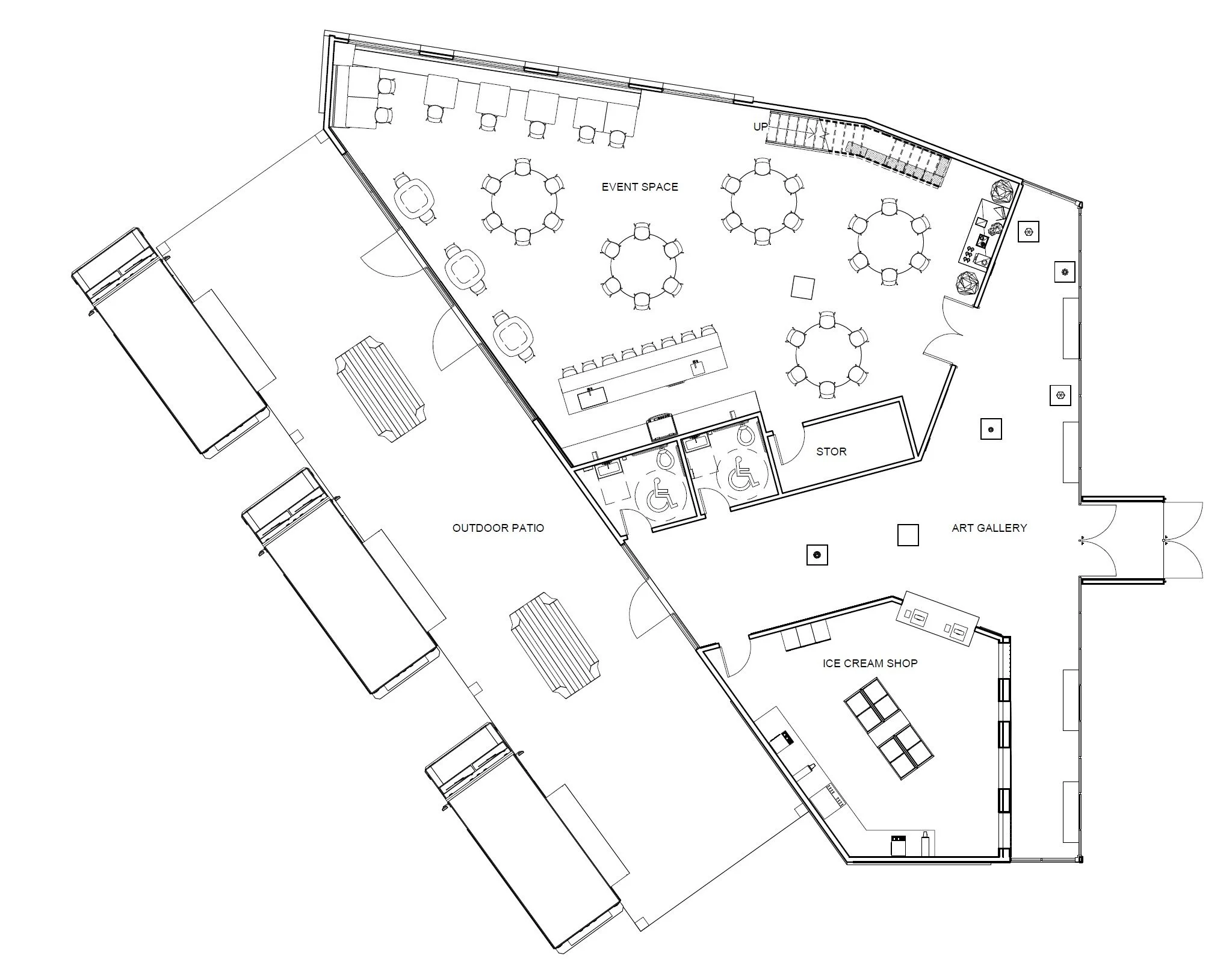
Ice Cream and Event Pavilion
ICE CREAM SHOP AND EVENT PAVILION
All
Senior Interior Design Capstone
Ice Cream and Event Pavilion
17 East Main Street
The Playbill Pavilion
One East Ave
60 Browns Race
Tiny Home
Compost Bin
Posters
Senior Interior Design Capstone
Ice Cream and Event Pavilion
17 East Main Street
The Playbill Pavilion
One East Ave
60 Browns Race
Tiny Home
Compost Bin
Posters